Você está aqui: Página Inicial / PROAD divulga Plano de Ação para o Instituto Biomédico (IB)

PROAD divulga Plano de Ação para o Instituto Biomédico (IB)

Uma das maiores dificuldades encontradas pela PROAD para realizar intervenções preventivas e corretivas nas estruturas físicas do Instituto Biomédico (IB) é a existência de copropriedade do espaço físico utilizado com o Instituto Hahnemanniano, valendo ressaltar que este imbróglio perdura desde 1930. Em decorrência daquela condição problemática, grandes investimentos em infraestrutura não podem ser feitos em razão da questão patrimonial. Entendendo a relevância do tema, a PROAD iniciou a solução deste problema histórico e tão prejudicial à comunidade do IB, tendo sido aberto o processo administrativo nº 23102.003572/2022-11 que culminou com a instituição da Câmara Local de Conciliação e Mediação, sendo auxiliado pela Advocacia Geral da União (AGU) e acompanhado de modo atento pela Procuradoria Federal junto à UNIRIO. O trabalho conjunto já apresentou alguns resultados relevantes, tais como o relatório técnico minucioso elaborado pela Coordenação de Engenharia da UNIRIO pormenorizando todo o histórico do complexo impasse. Tais tratativas são indispensáveis para que vislumbre a devida solução do caso.

 Na busca incessante por alternativas para a adequada e digna acomodação da comunidade universitária do Instituto Biomédico, a PROAD verificou opções de imóveis para as todas as atividades desenvolvidas, tendo respostas negativas da Prefeitura e do Estado, porém positivas por parte da Secretaria de Patrimônio da União com a sinalização de dois imóveis passíveis de cessão de uso gratuita. As tratativas estão em curso e os representantes dos três segmentos foram convidados a visitar as localidades mirando na construção de um plano de ocupação, devidamente orquestrado, entendendo as especificidades atinentes ao ensino, pesquisa e extensão, visando um futuro melhor para o nosso estimado Instituto Biomédico a curto/médio prazo.

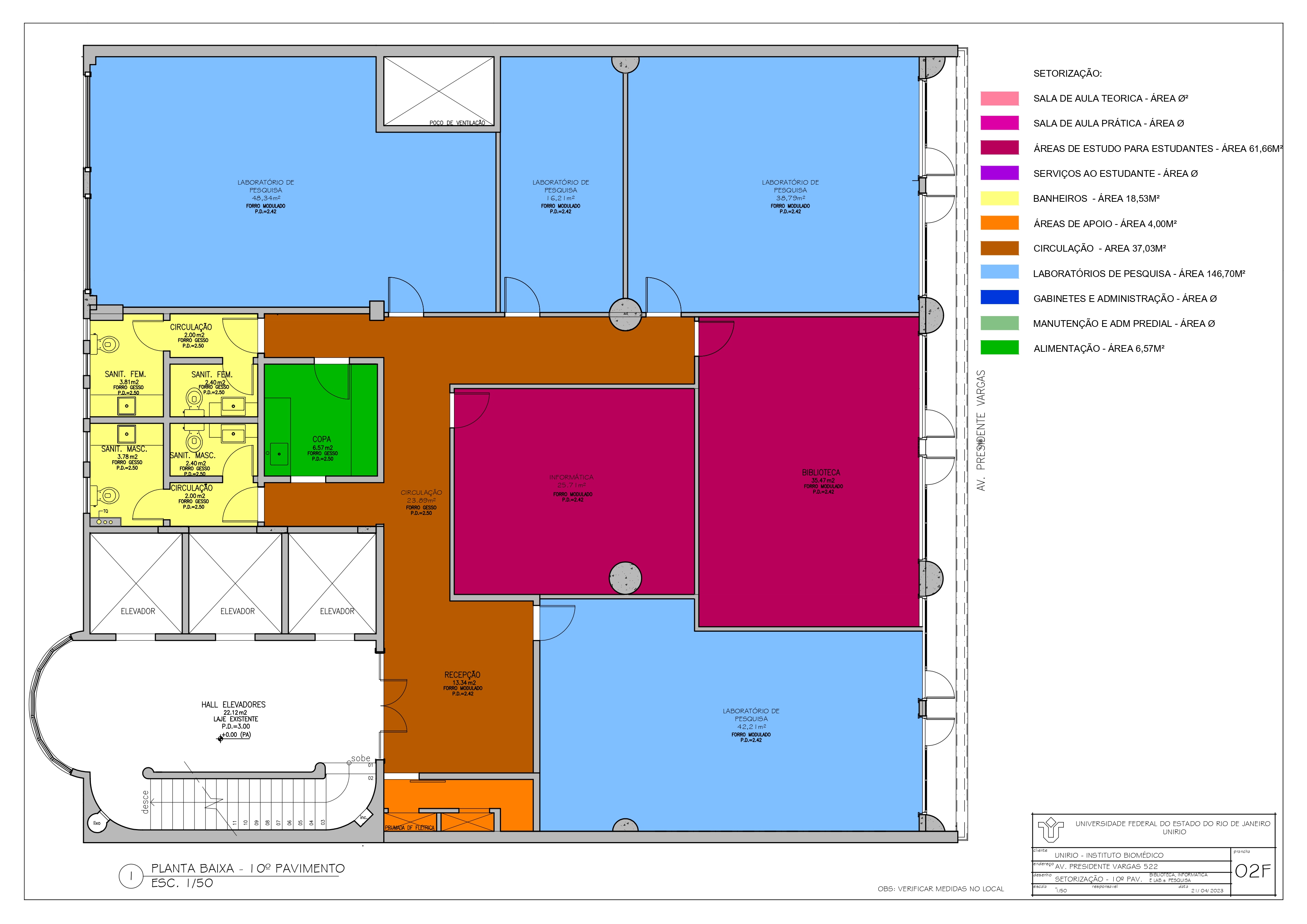
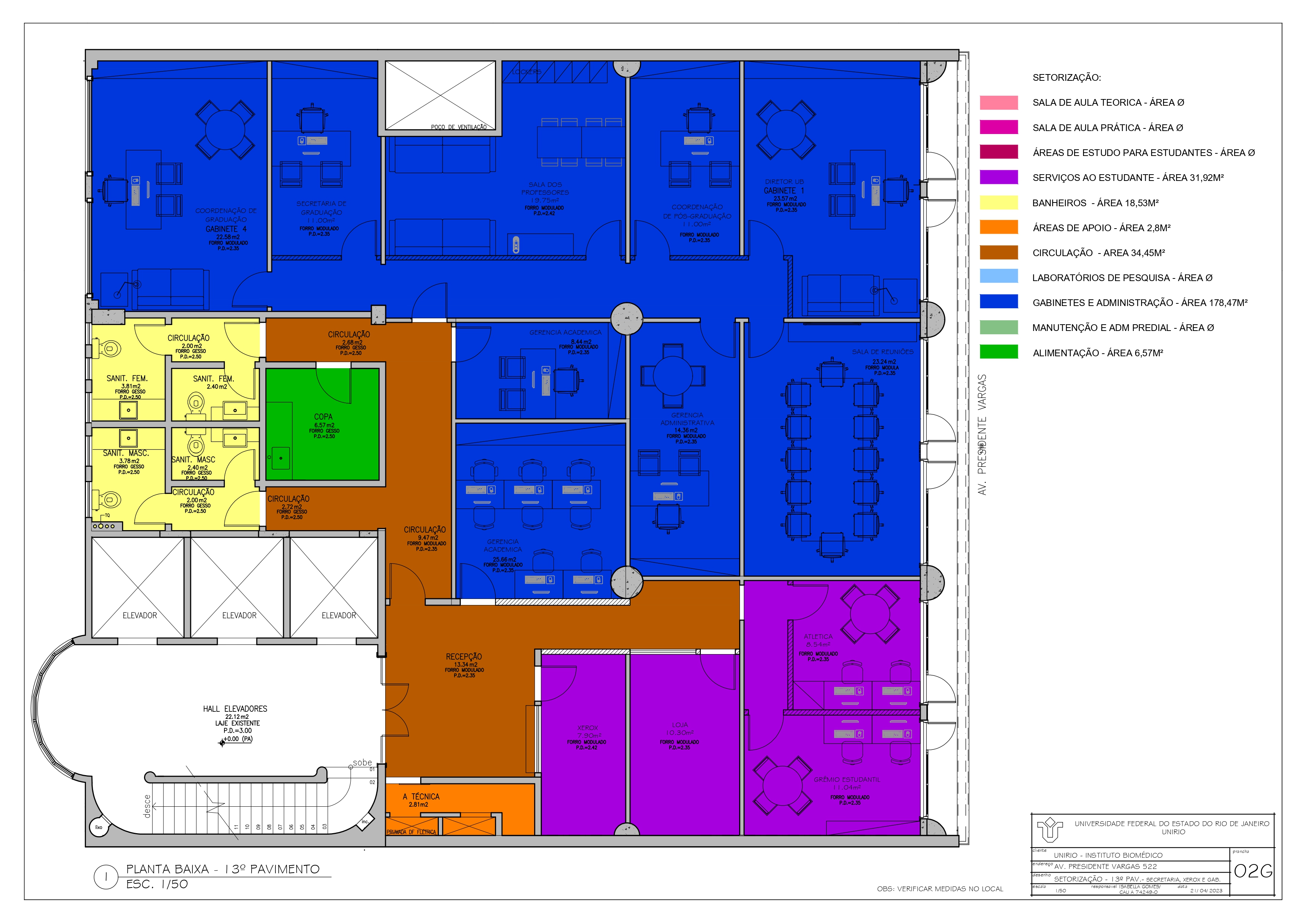
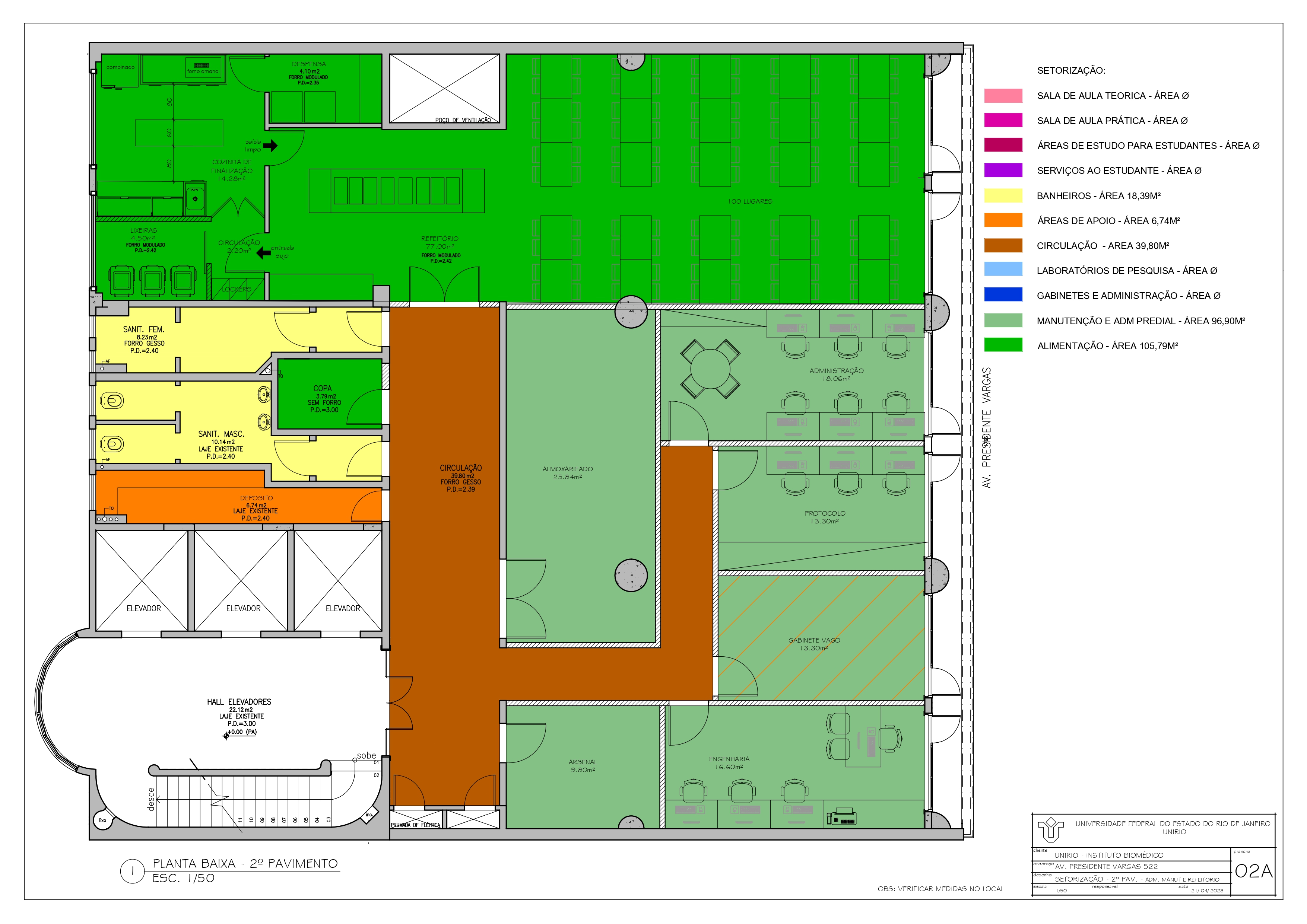
 Em primeiro plano, através do OFÍCIO 0153-A/2023/PROAD/UNIRIO, endereçado ao Gabinete da Reitoria, a Vice-Reitoria, a Decania do CCHS e a Direção do IB, foram encaminhadas as sugestões de plantas baixas com os layouts e setorizações dos 2º/9º/10º/11º/13º/15º/16º andares do imóvel situado na Avenida Presidente Vargas, Centro, Rio de Janeiro, RJ, que detém padrão de acabamento normal e bom estado de conservação, sendo compartimentado por alvenaria e divisórias, sendo a localidade servida por diversos meios de transporte (Rodoviário; Metroviário e Ferroviário) e farto comércio.

Destarte, em consonância com os princípios norteadores da Administração Pública, estamos no aguardo da devida análise e manifestação das áreas competentes, visando a continuidade da ação de forma a realizarmos a ocupação no próximo semestre, sendo curial salientar que o espaço situado na Avenida Presidente Vargas, nº 482, 12º/21º andares, Centro, Rio de Janeiro, RJ, também será alvo de estudo complementar visando a acomodação de outros espaços do Instituto Biomédico.